Pasadena Showcase House

Le Petit En Suite

A Closer Look at the Design

Being invited to design a room for the 2026 Pasadena Showcase House was a long-held dream, one that came at a moment of unexpected clarity.

About a year ago, I found myself drawn in a new direction. As my husband and I began searching for our next home, I was consistently pulled toward historic properties. Homes rich in character, craftsmanship and a sense of story you simply can’t replicate.

Many needed updating. But one thing became clear: any transformation should honor what was already there.

That realization didn’t just shape how I see homes — it redefined the work I feel called to do.

So when I stepped into this year’s Showcase House — a 1907 Craftsman with subtle Victorian influence, last updated decades ago, I immediately saw the opportunity. Not just to redesign a bathroom, but to restore a sense of intention.

Baldwin Oaks Estate

I could picture what it once was—and what it could be again.

I’ve always been drawn to that sense of history—the feeling of standing in a space that’s been lived in long before you. Imagining the lives that unfolded there, the quiet, everyday moments layered into the walls.

In a home like this, it’s impossible not to wonder who once moved through these rooms and how they experienced them.

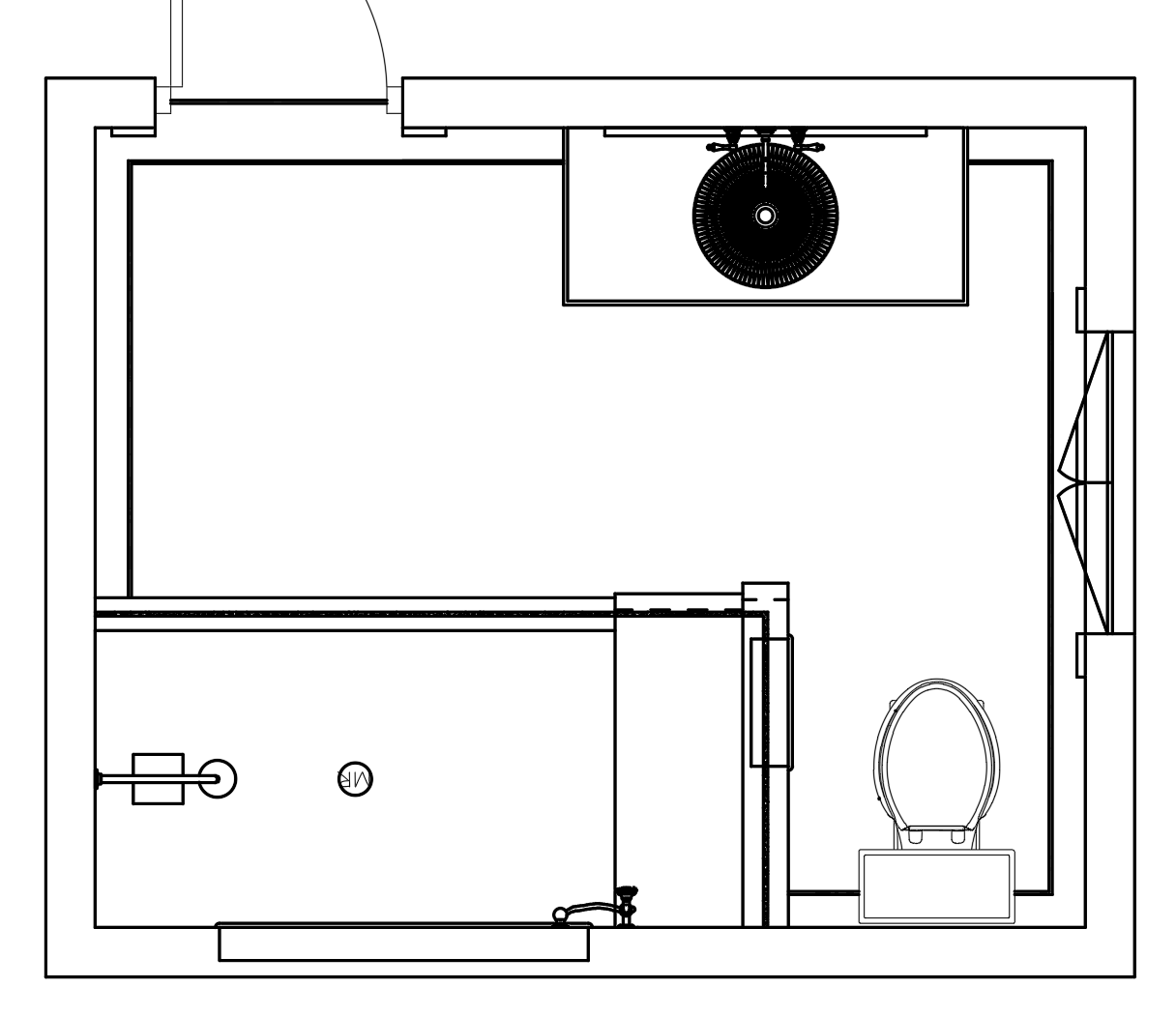
The existing layout worked against the space. A small shower projected into the room, cutting across a beautiful window and interrupting views of the pool and surrounding grounds. Reworking the layout became the first priority.

 

The original bathroom layout

 

Relocating the shower to the opposite wall allowed for a more expansive, functional design — one aligned with how we live today. The new layout includes a generous walk-in shower with a built-in bench, an elongated niche, and thoughtful detailing throughout.

 

Updated & improved layout

 

From there, the focus shifted to honoring the home’s history.

I sourced a dresser from the 1920s and repurposed it as the sink vanity. The mirror above it, found at an estate sale, brings its own quiet sense of past. I designed the wainscoting to rise higher than standard, echoing proportions often seen in homes of this era. Above it, a classic Morris & Co. wallpaper adds depth and continuity—rooted in design history, yet timeless in feel.

 

The mood board: Le Petit En Suite

 

Materials were selected for both cohesion and longevity. Marble mosaic tile flows from the floor into the shower, creating continuity and movement, while period-inspired plumbing fixtures and subtle architectural details — like softly carved edges in the stone — add refinement without excess.

The result is a space that feels as though it belongs. Updated for today, while remaining grounded in where it began.

For me, that balance is everything.

Photo credit: Peter Christiansen Valli

This is the work I’m drawn to: honoring the integrity of a home while making it fully livable for the way we live now.

If you’re in the Los Angeles area, I’d love for you to experience Le Petit En Suite in person at the Pasadena Showcase House, open April 19–May 17.

Justin Page Wood